Modernes Wohnen: 3-Zimmer-Wohnung in Geiselhöring mit erstklassiger Ausstattung!
94333 Geiselhöring, Etagenwohnung zum Kauf
Referenz
Dieses Objekt wurde bereits erfolgreich vermittelt.
Objektbeschreibung
Beschreibung
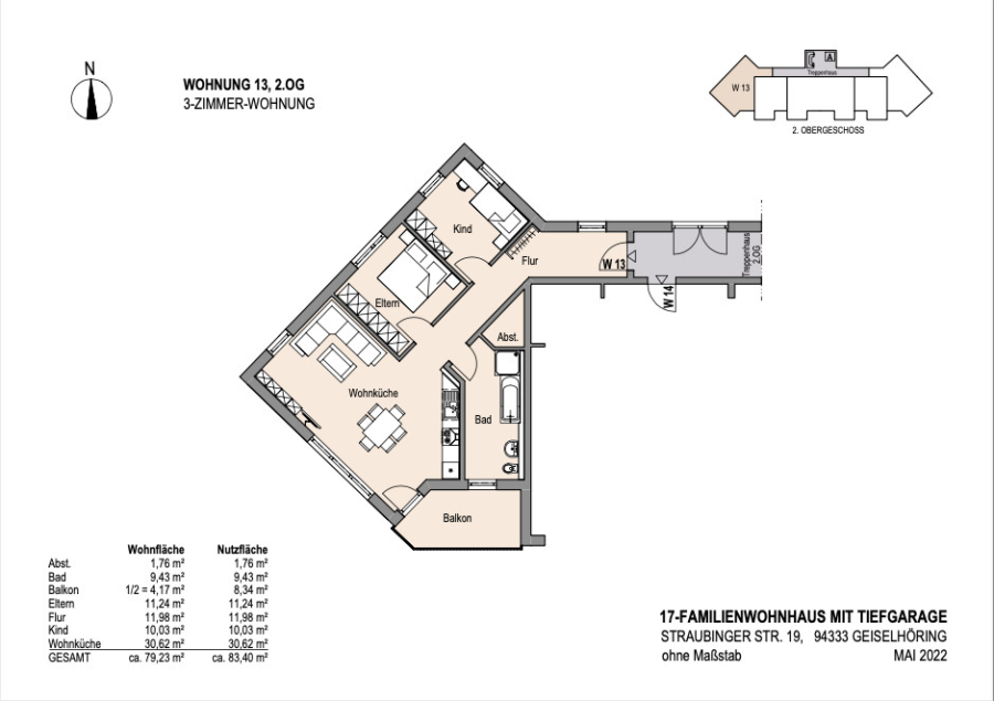
Zum Verkauf steht eine exklusive und perfekt geschnittene 3-Zimmer Wohnung mit einer Wohnfläche von ca. 80 m², die sich durch eine ruhige Lage mitten im Herzen von Geiselhöring auszeichnet. Genießen Sie die Vorzüge einer zentralen Lage, ohne auf Ruhe und Privatsphäre verzichten zu müssen.
Option 1: Gemütliche 3-Zimmer-Wohnung im 2. OG mit Südbalkon. Genießen Sie den Sonnenschein über den ganzen Tag.
Option 2: Charmante 3-Zimmer-Wohnung im Erdgeschoss mit einer Terrasse und großzügigem Gartenanteil von ca. 152 m². Ideal für Gartenliebhaber und Familien, die viel Platz im Freien schätzen.
Kaufpreis: € 395.500,-
Allgemeine Beschreibung:
Wohnbereich:
Die großzügige Wohnküche mit ca. 30 m² lädt zu gemütlichen Abenden und geselligen Zusammenkünften ein. Die offene Gestaltung bietet viel Platz und Licht, was eine angenehme Wohnatmosphäre schafft.
Kinderzimmer:
Ein freundliches und helles Zimmer mit ca. 10 m², ideal als Kinder- oder Arbeitszimmer. Hier findet Ihr Nachwuchs oder Ihr Home-Office alles, was es braucht.
Schlafzimmer:
Ein ruhiger Rückzugsort für erholsame Nächte. Dieses Schlafzimmer mit ca. 11 m² bietet ausreichend Platz für ein großes Bett und einen Kleiderschrank.
Badezimmer:
Modern und funktional gestaltet, verfügt das Badezimmer über eine Badewanne, eine Dusche, ein WC und ein Waschbecken. Hier starten Sie gut in den Tag und entspannen am Abend.
Flur:
Der geräumige Flur verbindet alle Zimmer harmonisch miteinander und bietet zusätzlich Platz für Garderobe und Stauraum.
Terrasse:
Genießen Sie Ihre Mahlzeiten im Freien oder entspannen Sie sich nach einem langen Tag auf Ihrer eigenen Terrasse.
Kellerabteil:
Die Wohnung verfügt über ein Kellerabteil, das ausreichend Platz für Stauraum bietet.
Die Raumaufteilung der Wohnung ist folgende:
Abstellraum, Badezimmer mit Dusche und WC, Flur, Küche, Schlafzimmer, Wohnzimmer mit Esszimmer und Zugang zum Balkon.
Ausstattung
- Energiestandard KfW-55
- Dezentrale Be- und Entlüftungsanlage
- Fußbodenheizung
- Erstklassiger Vinylboden im gesamten Wohnbereich
- Mit hochwertigen Fliesen versehenes Badezimmer
- Hochwertige Kunststoff-Aluminiumfenster mit 3-fach-Verglasung
- Wohnräume mit elektrisch betriebenen Aluminiumjalousien
- Schlafräume mit elektrisch betriebenen Rollos
- Kellerabteil
- Fahrradkeller
- Waschraum
- TG-Stellplatz
- Aufzug
- Barrierefreier Zugang
Sonstiges
Immobilienmakler
Alexander Griebel
real estate GmbH & Co. KG
Prüfeninger Schloßstr. 2, 93051 Regensburg
Tel.: 0941 / 30770 – 230
Fax: 0941 / 30770 – 17
Email: alexander.griebel@remax.de
Umsatzsteuer-Identifikationsnummer gemäß § 27 a Umsatzsteuergesetz: DE228543230
Genehmigung nach § 34 c Abs. 1 Satz 1 Nr. 1 GewO
Zuständige Erlaubnis- & Aufsichtsstelle ab 01.01.2020: IHK für München und Oberbayern, Max-Joseph-Straße 2, 80333 München
Hinweis auf EU-Streitschlichtung:
Die Europäische Kommission stellt eine Plattform zur Online-Streitbeilegung (OS) bereit:
https://ec.europa.eu/consumers/odr
Wir sind nicht verpflichtet und bereit, an einem Streitbeilegungsverfahren teilzunehmen.
Lage
Der Bahnhof befindet sich etwa 650 m entfernt. Alle Einkaufsstätten für den täglichen Bedarf sind fußläufig erreichbar. Die Grund- und Mittelschule sind ca. 250 m entfernt. Der Kindergarten liegt 550 m entfernt. Darüber hinaus bietet der Standort eine top Infrastruktur mit Allgemeinmedizinern, einer Apotheke, Grundschule, Hauptschule, einem Kindergarten, Lebensmittel-Discounter und öffentlichen Verkehrsmittel.
Sie sehen gerade einen Platzhalterinhalt von Google Maps. Um auf den eigentlichen Inhalt zuzugreifen, klicken Sie auf die Schaltfläche unten. Bitte beachten Sie, dass dabei Daten an Drittanbieter weitergegeben werden.
Mehr InformationenDie dargestellte Position der Immobilie ist nur eine ungefähre Angabe.






























