Für die junge Familie!
93057 Regensburg, Reihenmittelhaus zum Kauf
Referenz
Dieses Objekt wurde bereits erfolgreich vermittelt.
Objektbeschreibung
Beschreibung
Das familienfreundliche Reihenmittelhaus wurde im Jahr 1962 erbaut und wurde ca. im Jahr 2009 umfangreich saniert.
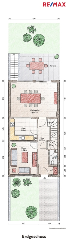
Im Erdgeschoß empfängt Sie eine Diele, ein Schlafzimmer, ein Gäste WC und die offen gestaltete Küche mit Essbereich und Wohnzimmer. Der im Wohnzimmer befindliche Specksteinofen, ist für den kommenden Herbst und Winter eine sichere Wärmequelle. Vom Wohnzimmer aus, haben Sie Zugang zur überdachten Terrasse, in den Garten und zur Garage.
Im Obergeschoss gibt es das Elternschlafzimmer, ein Büro und das Badezimmer mit Eckbadewanne und Dusche.
Im ausgebauten Dachgeschoss befindet sich ein großes Studio, perfekt für größere Kinder oder auch als Gästezimmer.
Für eine besserer Ordnung sorgt der neu und moderne, maßgeschneiderte, eingebaute Wandschrank.
Stauraum finden Sie ausreichend im Keller oder in den Stau "Boxen" an der Garage.
Überzeugen Sie sich bei einer persönlichen Besichtigung von den Vorzügen dieser Immobilie und dessen Lage!
Ausstattung
Dieses Angebot zeichnet sich durch folgende Vorteile und Ausstattungsmerkmale aus:
- umfangreich Saniert in 2009
- Einbauküche ist im Kaufpreis inbegriffen
- Specksteinofen für eine sicher Wärmequelle im Winter
- Fußbodenheizung im Wohnzimmer (2009)
- Elektroheizung, Marmorplatten aus 2009
- Fenster von 2009
- elektronische Rollos
- Badezimmer mit Fußbodenheizung im Obergeschoss aus 2009
- Voll unterkellert
- Dach mit Dämmung von ca. 2009
- überdachte Terrasse von 2009
- Garage mit elektronischen Tor
- Stellplatz und Terrasse vor dem Haus
- Starkstrom Anschluss
- großer Garten
- ruhige Lage
und vieles mehr...
Sonstiges
WICHTIGER HINWEIS :
Ich bitte Sie höflichst, Anfragen mit Ihrer kompletten Anschrift, Name und Tel.-Nr., über das Internetportal, auf dem Sie sich jetzt befinden, zu senden. Ich danke für Ihr Verständnis.
Der guten Ordnung halber weisen wir Sie darauf hin, dass unsere Tätigkeit, eine Vermittlungs-/Nachweisgebühr in Höhe von 3,57 % des Kaufpreises inkl. der gesetzlichen Mehrwertsteuer nach notariellem Vertragsabschluss nach sich zieht. Durch Ihre weitere Objektanfrage bestätigen Sie die Vereinbarung und Anerkennung dieser Maklercourtage. Ferner beruhen diese Objektdaten auf Angaben des Verkäufers, für die wir keine Gewähr übernehmen.
Immobilienmaklerin
Daniela Hecker
Prüfeninger Schloßstr. 2, 93051 Regensburg
Tel.: 0941–30770–245
Fax: 0941–30770–17
Email: daniela.hecker@remax.de
Zuständige Erlaubnis- & Aufsichtsstelle ab 01.01.2020: IHK für München und Oberbayern, Max-Joseph-Straße 2, 80333 München
Lage
Wohnen heißt nicht nur Erholung, genauso wichtig ist die Erreichbarkeit von Einkaufsmöglichkeiten, Schulen und Arbeitsplatz.
Die Altstadt, das Donaueinkaufszentrum, der Gewerbepark und das ALEX-Center sind in unmittelbarer Nähe. Siemens, Infineon, Osram und das BMW-Werk sind über die Osttangente ebenfalls in kürzester Anfahrtszeit zu erreichen.
Die Lage zwischen den zwei umliegenden Parks und die ruhige Umgebung, macht es besonders für Familien sehr attraktiv.
Sie sehen gerade einen Platzhalterinhalt von Google Maps. Um auf den eigentlichen Inhalt zuzugreifen, klicken Sie auf die Schaltfläche unten. Bitte beachten Sie, dass dabei Daten an Drittanbieter weitergegeben werden.
Mehr InformationenDie dargestellte Position der Immobilie ist nur eine ungefähre Angabe.






















