Neuwertiges Top-Reiheneckhaus mit Südausrichtung!
93051 Regensburg, Reiheneckhaus zum Kauf
Referenz
Dieses Objekt wurde bereits erfolgreich vermittelt.
Objektbeschreibung
Beschreibung
Dieses äußerst attraktive und neuwertige Reihenhaus wurde 2011 architektonisch ansprechend in einer Split-Level-Bauweise errichtet. Dadurch entstand u. a. ein spektakuläres Wohnzimmer mit großer Deckenhöhe auf der Ebene 1, sowie ein großzügiges Studiozimmer mit zweiter Schlafebene im Dachgeschoss.
Der Grundriss ist gut organisiert, so dass problemlos eine Familie Platz findet, aber auch ein Home-Office-Arbeitsplatz lässt sich bestens integrieren.
Ebenfalls sehr praktisch: Sie kommen direkt über die Tiefgarage in das Haus.
Die Raumaufteilung:
Ebene 0/+1:
Wohnen/Essen: ca. 22,28 m²
Küche: ca. 17,40 m²
Terrasse: ca. 11,28 m² (Wfl. ca. 2,82 m²)
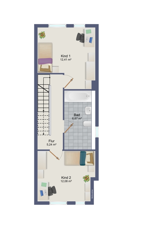
Ebene 2:
Kind 1: ca. 12,41 m²
Kind 2: ca. 12,08 m²
Bad: ca. 6,97 m²
Flur ca. 5,24 m²
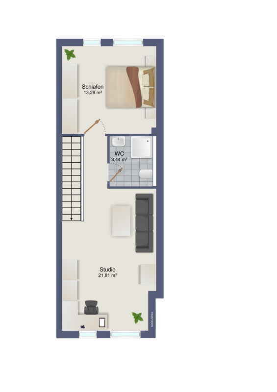
Ebene 3:
Schlafen: ca. 13,29 m²
Studio: ca. 21,81 m²
WC: ca. 3,44 m²
Ebene TG:
Diele: ca. 3,74 m²
Gäste-WC: ca. 2,38 m²
Flur/Garderobe: ca. 5,83 m²
Keller: ca. 3,18 m²
Sämtliche Wohn- und Schlafräume wie auch die Bäder sind mit einer Fußbodenheizung ausgestattet, wodurch immer ein angenehmes Klima geschaffen wird.
Für eine gemütliche Wohnatmosphäre sorgt zudem ein 8,5 kw-Kaminofen auf der Ebene 1, mit dem Sie eine wohlige Wärme ins ganze Haus bringen.
In der ganzen Immobilie sind hochwertige Parkett- bzw. ansprechende und moderne Fliesenböden verlegt.
Gartenliebhaber finden einen sonnigen Platz im Süden, aber auch auf der Eingangsseite gibt es noch eine zusätzliche, diesem Haus zugeordnete Grünfläche.
Ein weiteres Highlight ist der Blick zur historischen Stadt und mit dem Dom St. Peter.
Ausstattung
- Gepflegtes Reiheneckhaus mit ca. 130 m² Wohnfläche
- Süd-Ausrichtung
- Familienfreundlicher Grundriss
- Süd-Terrasse
- Hohe, helle Räume, Split-Level-Bauweise
- Kaminofen mit 8,5 kw im Wohnzimmer
- Fußbodenheizung
- Bad mit Wanne im 1. OG
- Bad mit Dusche im DG
- Separate Gäste-Toilette am Eingang
- Schöner, eingewachsener Garten
- Tiefgaragen-Stellplatz mit direktem Zugang zum Haus
- Bezugsfrei nach Vereinbarung, voraussichtlich ab Ende Mai 2022
Kaufpreis: 799.000,- Euro + 30.000,- Euro TG = 829.000,- Euro
- Kaufpreis Haus mit Garage gesamt 829.000,- Euro
Sonstiges
Für Fragen sowie für die Vereinbarung eines Besichtigungstermins stehen wir Ihnen unter der Tel.-Nr.: 0941/30770–11 (Hr. Meinlschmidt) gerne zur Verfügung.
Bei Erwerb verpflichtet sich der Käufer für unsere Tätigkeit eine Vermittlungs-/Nachweisgebühr in Höhe von 3,57 % des Kaufpreises inklusive der gesetzlichen Mehrwertsteuer nach notariellem Vertragsabschluss zu leisten.
Ferner beruhen diese Objektdaten auf Angaben des Verkäufers, für die wir keine Gewähr übernehmen.
Wir freuen uns auf baldige Nachricht von Ihnen!
Immobilienmakler:
Thomas Meinlschmidt
Prüfeninger Schloßstr. 2,
93051 Regensburg
Tel.: 0941 30 77 0–110
Fax: 0941 30 77 0–17
Email: thomas.meinlschmidt@remax.de
Aufsichtsbehörde:
Stadt Regensburg
Johann-Hösl-Str. 11
93053 Regensburg
USt.-Id.: DE 235 08 94 54
Lage
Kurze Wege sind es, die den im Südwesten Regensburgs gelegenen Stadtteil Ziegetsdorf charakterisieren.
Gleich ob die Unternehmen im Regensburger Westen wie Osten oder die Universität sowie das Klinikum als Bildungsstätte wie als Arbeitgeber, gleich ob die Regensburger Altstadt, gleich ob zur Erholung die nahen Höhenzüge oder die Donauauen, gleich ob Kindergarten und Schule, Ärzte wie Einkaufsmöglichkeiten oder auch die überregionale Verkehrsinfrastruktur - alles bleibt in wenigen Minuten zu Fuß, mit dem Stadtbus oder dem Auto zu erreichen.
Regensburg - Weltkulturerbe
Das historische Regensburg ist ein Schmelztiegel zwischen mittelalterlichem Flair und moderner Großstadt. Die engen Gassen, die altertümlichen Baudenkmäler sowie die schön angelegten Parks vermitteln den südländischen Eindruck, der dem Erzbistum Regensburg auch den Ruf als nördlichste Provinz Italiens einbrachte.
Das Angebot an kulturellen Veranstaltungen in der Universitätsstadt steht dem des Nachtlebens in nichts nach - da Regensburg zu den Städten mit der höchsten "Kneipendichte" in Deutschland zählt. Die Landschaft rund um Regensburg bietet mit den Donauauen unzählige Freizeitgestaltungsmöglichkeiten für Sport und Entspannung.
Im Juli 2006 wurde die Altstadt von Regensburg mit Stadtamhof zum Weltkulturerbe ernannt. Das gesamte Welterbe-Ensemble erstreckt sich über 183 Hektar und umfasst ca. 1.000 Baudenkmäler. (Quelle: Stadt Regensburg)
Sie sehen gerade einen Platzhalterinhalt von Google Maps. Um auf den eigentlichen Inhalt zuzugreifen, klicken Sie auf die Schaltfläche unten. Bitte beachten Sie, dass dabei Daten an Drittanbieter weitergegeben werden.
Mehr InformationenDie dargestellte Position der Immobilie ist nur eine ungefähre Angabe.
























