Bezahlbares Mehrfamilienhaus zur Kapitalanlage und? oder? Eigennutz. Die Gelegenheit!
92421 Schwandorf, Mehrfamilienhaus zum Kauf
Referenz
Dieses Objekt wurde bereits erfolgreich vermittelt.
Objektbeschreibung
Beschreibung
Dieses voll unterkellerte gepflegte Mehrfamilienhaus mit guter Bausubstanz wurde ca. im Jahr 1977 auf einer Grundstücksfläche von ca. 991 m² erbaut und befindet sich in Fronberg ein Ortsteil von Schwandorf.
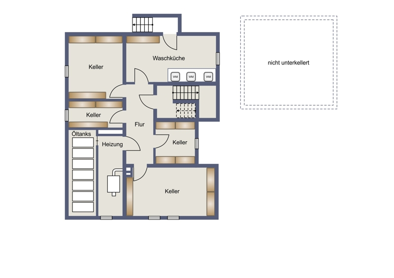
Die vier Wohnungen verteilen sich über insgesamt drei Etagen, hervorzuheben ist, das die Wohnungen sich in einen sehr gepflegten Zustand befinden und immer wieder Instand gehalten wurden. Die gesamte Wohnfläche beträgt ca. 294 m² und verfügt über drei Kellerabteile.
Zwei Wohnungen im Dachgeschoss sind aktuell nicht vermietet.
Das Mehrfamilienhaus eignet sich aus diesem Grund sowohl zur Eigennutzung und zur Kapitalanlage.
Es sind vier Garagen vorhanden die angemietet werden können.
Der sehr großzügige und pflegeleichte Garten steht den Bewohnern zur gemeinschaftlichen Nutzung zur Verfügung.
Ein Waschraum und ein Trockenraum mit Zugang zum Garten sind ebenfalls vorhanden.
Überzeugen Sie sich bei einer persönlichen Besichtigung von den Vorzügen dieser Interessanten Immobilie und dessen Lage!
Ausstattung
Das Anwesen teilt sich folgendermaßen auf:
Wohnung EG: Wohnfläche von ca. 107 m²
- 3 Zimmer, Küche, Bad, separater WC, großzügiger Balkon und Kellerabteil
Kaltmiete: 650,-€ + 50,-€ Garage
Wohnung 1OG: Wohnfläche von ca. 107 m²
- 3 Zimmer, Küche, Bad, separater WC, großzügiger Balkon und Kellerabteil.
Kaltmiete: 730,-€ + 50,-€ Garage
Wohnung DG: Wohnfläche von ca. 49 m²
- 2 Zimmer, Küche mit Einbauküche, Bad und Kellerabteil
Nicht vermietet, mögliche Mieteinnahme ca.380,-€ + 50,-€Garage
Wohnung DG: Wohnfläche von ca. 31 m²
- 1 Zimmer, Küche mit Einbauküche, Bad
Nicht vermietet, mögliche Mieteinnahme ca.250,-€ + 50,-€Garage.
Ausstattungsmerkmale:
- aktuelle Mieteinnahmen von 1480,- €
- Mieteinnahmen für zwei Wohnungen noch möglich
- vier Wohnungen
- vier Garagen
- sehr gepflegter Zustand der Wohnungen
- Einbauküchen in DG Wohnungen
- Gemeinschaftsgarten
- Gemeinschaftswaschraum
- Fenster aus 2016
- Heizung aus 2006
Sonstiges
WICHTIGER HINWEIS :
Ich bitte Sie höflichst, Anfragen mit Ihrer kompletten Anschrift, Name und Tel.-Nr., über das Internetportal, auf dem Sie sich jetzt befinden, zu senden. Ich danke Ihnen für Ihr Verständnis.
Der guten Ordnung halber weisen wir Sie darauf hin, dass unsere Tätigkeit, eine Vermittlungs-/Nachweisgebühr in Höhe von 3,57 % des Kaufpreises inklusive der gesetzlichen Mehrwertsteuer nach notariellem Vertragsabschluss nach sich zieht. Durch Ihre weitere Objektanfrage bestätigen Sie die Vereinbarung und Anerkennung dieser Maklercourtage. Ferner beruhen diese Objektdaten auf Angaben des Verkäufers, für die wir keine Gewähr übernehmen.
Immobilienmaklerin
Sabriye Atas
Prüfeninger Schloßstr. 2, 93051 Regensburg
Tel.: 0941 30 77 0–237
Fax: 0941 30 77 0–17
M : 0179 / 72 67 891
Email: sabriye.atas@remax.de
Zuständige Erlaubnis- & Aufsichtsstelle ab 01.01.2020: IHK für München und Oberbayern, Max-Joseph-Straße 2, 80333 München
Steuernummer: 248/201/71078
Lage
Der Ortsteil Fronberg ist in unmitellbarer nähe zur Stadt Schwandorf. Die große Kreistadt Schwandorf liegt etwa 30 km nördlich von Regensburg. Schwandorf hat eine zentrale Lage im überregionalen Verkehrsnetz und hat sich zu einem bedeutsamen Gewerbe- und Industriestandort in der mittleren Oberpfalz entwickelt.
Wichtige Behörden sind in Schwandorf ansässig: Arbeitsamt, Finanzamt, Vermessungsamt, Amt für Landwirtschaft und Ernährung, Tierzuchtzentrum, Amtsgericht, Arbeitsgericht, sowie auch sämtliche Versorgungseinrichtungen, ein Krankenhaus und niedergelassene Ärzte. Schwandorf bietet Ihnen Einkaufsmöglichkeiten, Ärzten, Kindergärten sowie Grund-, Volksschulen und weiterführenden Schulen vor Ort alle notwendige Infrastruktur.
Außerdem verfügen Sie auch über eine ideale Anbindung an die A93, über die Sie beispielsweise rasch Weiden oder in lediglich knapp 30 Minuten auch Regensburg erreichen. Oder über die gleichfalls nicht weit entfernte Anschlussstelle zur A6 Nürnberg wie Prag.
Auch der Schienenverkehr bringt Sie schnell und unkompliziert in alle Richtungen.
Das Umland bietet mit dem Oberpfälzer Seenland ein ausgezeichnetes Freizeit- und Erholungsangebot
Sie sehen gerade einen Platzhalterinhalt von Google Maps. Um auf den eigentlichen Inhalt zuzugreifen, klicken Sie auf die Schaltfläche unten. Bitte beachten Sie, dass dabei Daten an Drittanbieter weitergegeben werden.
Mehr InformationenDie dargestellte Position der Immobilie ist nur eine ungefähre Angabe.























