„Investitionschance in Wiesau: Rentables Wohn- und Geschäftshaus mit Gewerbeeinheit und Garage“
95676 Wiesau, Haus zum Kauf
Referenz
Dieses Objekt wurde bereits erfolgreich vermittelt.
Objektbeschreibung
Beschreibung
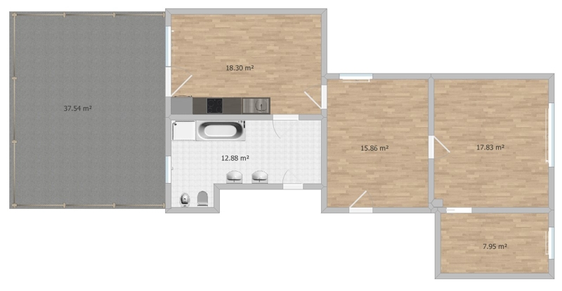
Dieses Wohn- und Geschäftshaus in Wiesau, ursprünglich im Jahr 1906 erbaut und 1985 kernsaniert, präsentiert sich auf einer großzügigen Grundstücksfläche von ca.414 Quadratmetern. Die Immobilie verfügt über eine Garage und einen Stellplatz, sowie eine Gasheizung aus dem Jahr 1996.
Bestehend aus vier Wohnungen und einer Gewerbeeinheit, ist das Anwesen vollständig vermietet.
- Im Erdgeschoss bietet eine Wohnung mit ca.35 Quadratmetern Wohnfläche eine Kaltmiete von 270,-€.
- Die Wohnung im Obergeschoss mit gleicher Fläche verzeichnet ebenfalls eine Kaltmiete von 270,-€.
- Die dritte Wohnung im Obergeschoss erstreckt sich über ca.73 Quadratmeter und generiert eine Kaltmiete von 455,-€.
- Die Dachgeschosswohnung, mit ca.77 Quadratmetern Wohnfläche, erzielt eine Kaltmiete von 420,-€.
Die Gewerbeeinheit bietet großzügige ca.180 Quadratmeter Nutzfläche und eine Kaltmiete von 400,-€. Ein zusätzlicher Lagerraum komplettiert die vielseitige Nutzungsmöglichkeit dieser Gewerbeeinheit.
Diese gut vermietete Immobilie eignet sich ideal für Investoren, die nach einer rentablen Kombination aus Wohn- und Gewerbeflächen suchen.
Für weitere Informationen oder zur Vereinbarung einer Besichtigung stehe ich Ihnen gerne zur Verfügung.
Hinweis: Die Angaben in diesem Exposé sind unverbindlich und basieren auf Informationen, die uns zum Zeitpunkt der Erstellung vorlagen. Änderungen und Irrtümer sind vorbehalten.
Ausstattung
- Wohn- und Geschäftshaus in Wiesau, Baujahr 1906, Kernsanierung 1985
- Grundstücksfläche: ca.414 Quadratmeter mit Garage und Stellplatz
- Gasheizung aus dem Jahr 1996
- Vier vermietete Wohnungen:
- EG: ca.35 m² Wohnfläche, Kaltmiete 270,-€
- OG: ca.35 m² Wohnfläche, Kaltmiete 270,-€
- OG: ca.73 m² Wohnfläche, Kaltmiete 455,-€
- DG: ca.77 m² Wohnfläche, Kaltmiete 420,-€
- Gewerbeeinheit mit 180 m² Nutzfläche, Kaltmiete 400,-€
- Zusätzlicher Lagerraum vorhanden
- Gepflegter Zustand und durchgehend vermietet
- Ideale Investitionsmöglichkeit für Wohn- und Gewerbeimmobilie
Sonstiges
WICHTIGER HINWEIS :
Ich bitte Sie höflichst, Anfragen mit Ihrer kompletten Anschrift, Name und Tel.-Nr., über das Internetportal, auf dem Sie sich jetzt befinden, zu senden. Ich danke Ihnen für Ihr Verständnis.
Der guten Ordnung halber weisen wir Sie darauf hin, dass unsere Tätigkeit, eine Vermittlungs-/Nachweisgebühr in Höhe von 3,57 % des Kaufpreises inklusive der gesetzlichen Mehrwertsteuer nach notariellem Vertragsabschluss nach sich zieht. Durch Ihre weitere Objektanfrage bestätigen Sie die Vereinbarung und Anerkennung dieser Maklercourtage. Ferner beruhen diese Objektdaten auf Angaben des Verkäufers, für die wir keine Gewähr übernehmen.
Immobilienmaklerin
Sabriye Atas
Prüfeninger Schloßstr. 2, 93051 Regensburg
Tel.: 0941 30 77 0–237
Fax: 0941 30 77 0–17
M : 0179 / 72 67 891
Email: sabriye.atas@remax.de
Zuständige Erlaubnis- & Aufsichtsstelle ab 01.01.2020: IHK für München und Oberbayern, Max-Joseph-Straße 2, 80333 München
Steuernummer: 248/201/71078
Lage
Wegen der zentralen und verkehrsgünstigen Lage ist Wiesau Eingangstor zum Naturpark Steinwald, zugleich aber auch Ausgangspunkt für viele Ausflüge zu Sehenswürdigkeiten in der näheren Umgebung.
Der Markt Wiesau zählt über 4.000 Einwohner und gehört zum Oberpfälzer Landkreis Tirschenreuth.
Wiesau ist heute Industriestandort mit folgender Wirtschaftsstruktur: Kunststoffverarbeitung, Kaminsysteme, Metallverarbeitung, Sprudel- und Mineralwasser und eine größere Zahl leistungsfähiger Handwerksbetriebe.
Über die Anschlußstelle Wiesau ist der Ort sehr gut an die Autobahn A93 (Regensburg-Hof) angebunden, gleichzeitig bietet die B299 (Amberg-Waldsassen) eine weitere, für Autofahrer günstige Verbindung. Am Bahnhof Wiesau hält der Regionalexpress Regensburg-Hof. Außerdem gibt es Bus- und Bahnverbindungen ins benachbarte Tschechien, sowie nach Regensburg, München und Nürnberg.
Sie sehen gerade einen Platzhalterinhalt von Google Maps. Um auf den eigentlichen Inhalt zuzugreifen, klicken Sie auf die Schaltfläche unten. Bitte beachten Sie, dass dabei Daten an Drittanbieter weitergegeben werden.
Mehr InformationenDie dargestellte Position der Immobilie ist nur eine ungefähre Angabe.





























