Wohnen auf einer Ebene, EFH mit Ausbaureserven
92421 Wackersdorf, Einfamilienhaus zum Kauf
Referenz
Dieses Objekt wurde bereits erfolgreich vermittelt.
Objektbeschreibung
Beschreibung
Willkommen in Ihrem potenziellen neuen Zuhause – einem soliden, 1971 errichteten Einfamilienhaus, das idyllischen Wohnkomfort mit einer großzügigen Grundstücksfläche verbindet.
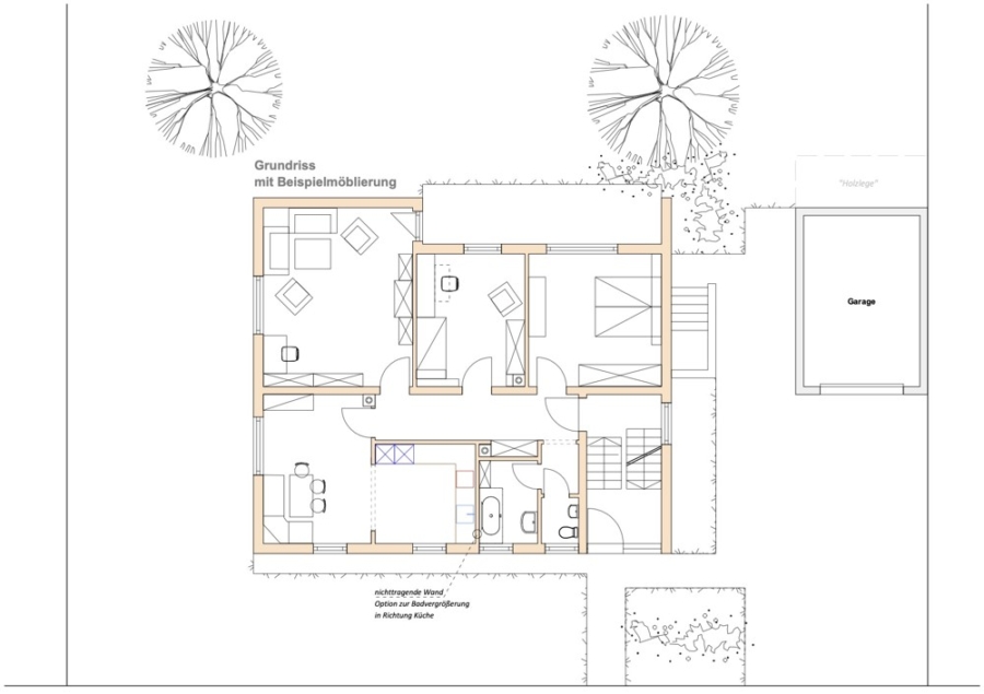
Dieses "bungalowartige" Wohnhaus präsentiert sich auf einem weitläufigen Grundstück von ca. 860 m² und bietet eine einladende Wohnfläche von 97,5 m² (plus Treppenhaus, Kellerräumen und Dachausbauoption). Eine ideale Basis für Familien oder Paare, die Wert auf Lage, Raum und Privatsphäre legen.
Der erdgeschossige Grundriss bietet neben Küche, Esszimmer und Bad ein geräumiges Wohnzimmer und zwei Schlafzimmer, die ausreichen Platz für erholsame Nächte bieten. Das helle und freundliche Wohnzimmer mit Terrassenzugang lädt zum Entspannen ein und wird schnell zum Mittelpunkt des Familienlebens. Das kompakte Badezimmer mit separiertem WC-Raum verspricht Komfort und Funktionalität im Alltag. Die aktuell sehr großzügige Küche könnte auch zu Gunsten einer Badvergrößerung etwas verkleinert werden... (siehe Grundriss).
Viel Raum für Ihre Ideen, Viel Raum zur Erweiterung:
Zum optionalen Ausbau steht noch ein komplettes Obergeschoss bereit – für größeren Raumbedarf Ihrer Familie oder als separate Wohnung zur Vermietung.
Das Haus kann mit minimalem Aufwand sofort bezogen werden (etwas Farbe und ggf. Tapeten und Bodenbeläge) – oder Sie modernisieren vorab nach Ihren Wünschen.
Genießen Sie die Freiheit, Ihr neues Heim in vollen Zügen zu gestalten und entdecken Sie die vielen Möglichkeiten, die diese Immobilie bietet.
Sichern Sie sich jetzt die Gelegenheit, ein Teil dieser wunderbaren Nachbarschaft zu werden und vereinbaren schnell einen Besichtigungstermin!
Ausstattung
ca. 860 m² Grundstück mit eingewachsenem Garten und Obstbäumen
ca. 97,5 m² Wohnfläche im Erdgeschoss, komplette Wohnung: "Bungalowgrundriss"
ca. 95 m² Kellerräume inkl. Waschküche
ca. 80 m² Ausbaureserve im DG
Gaszentralheizung plus zweiter Kamin (Ofenoption)
Energiedaten:
Gebäude Bj 1971, Heizung Bj 1999, EA-B, HZG Gas, 373,00 kWh/(m²·a), EEK H
Garage (mit Montagegrube)
Sonstiges
Immobilienmakler
Thomas Wein
Schwaigerstraße 2, 92421 Schwandorf
Tel.: 09431 / 71 827–13
Fax: 0941 / 30770 – 17
Email: thomas.wein@remax.de
Umsatzsteuer-Identifikationsnummer gemäß § 27 a Umsatzsteuergesetz: DE52 184 908 362
Genehmigung nach § 34 c Abs. 1 Satz 1 Nr. 1 GewO
Zuständige Erlaubnis- & Aufsichtsstelle ab 01.01.2020: IHK für München und Oberbayern, Max-Joseph-Straße 2, 80333 München
Lage
Ihr neuer Lebensmittelpunkt befindet sich in einer idyllischen und begehrten naturnahen Wohngegend in der Nähe von Steinberg am See. - Kein Neubaugebiet, kein Baulärm, keine freien Grundstücke in dieser begehrten Wohnlage.
Die Umgebung besticht durch eine harmonische Kombination aus urbanem Komfort und naturnaher Ruhe. In erfahrbarer Nähe (1-3 Km) bieten sich zahlreiche Einrichtungen des täglichen Bedarfs, darunter Einkaufsmöglichkeiten, Restaurants und Cafés (am See), die zu gemütlichen Stunden einladen.
Die Umgebung ist familienfreundlich und bietet zahlreiche Sport- und Freizeitmöglichkeiten, die zu einer aktiven und abwechslungsreichen Freizeitgestaltung beitragen.
Dank der gut ausgebauten Verkehrsanbindungen ist eine schnelle Verbindung zu umliegenden Großstädten gewährleistet, was Ihnen sowohl die Ruhe einer ländlichen Geborgenheit als auch die Erreichbarkeit urbaner Zentren ermöglicht (Autobahnauffahrt in ca. 5 Minuten erreichbar).
Sie sehen gerade einen Platzhalterinhalt von Google Maps. Um auf den eigentlichen Inhalt zuzugreifen, klicken Sie auf die Schaltfläche unten. Bitte beachten Sie, dass dabei Daten an Drittanbieter weitergegeben werden.
Mehr InformationenDie dargestellte Position der Immobilie ist nur eine ungefähre Angabe.
























