Großzügiges EFH mit Einliegerwohnung in schöner Lage von Sinzing-Riegling
93161 Sinzing, Einfamilienhaus zum Kauf
Referenz
Dieses Objekt wurde bereits erfolgreich vermittelt.
Objektbeschreibung
Beschreibung
In guter stadtnaher Lage präsentieren wir Ihnen dieses großzügige Haus mit einem ebensolchen Grundstück.
Das Anwesen befindet sich in einer guten und gewachsenen Wohngegend mit herrlichem Blick ins Grüne.
Erbaut in klassischen Architektur der 70er Jahre, in massiver solider Bauausführung und flexibel nutzbarem Grundriss ist dies ein Haus für mehrere Generationen, Arbeiten und Wohnen oder für die heranwachsenden Kinder.
Ausstattung
Think big!
Viel Platz ist der wahre Luxus- großes Haus, großes Grundstück!
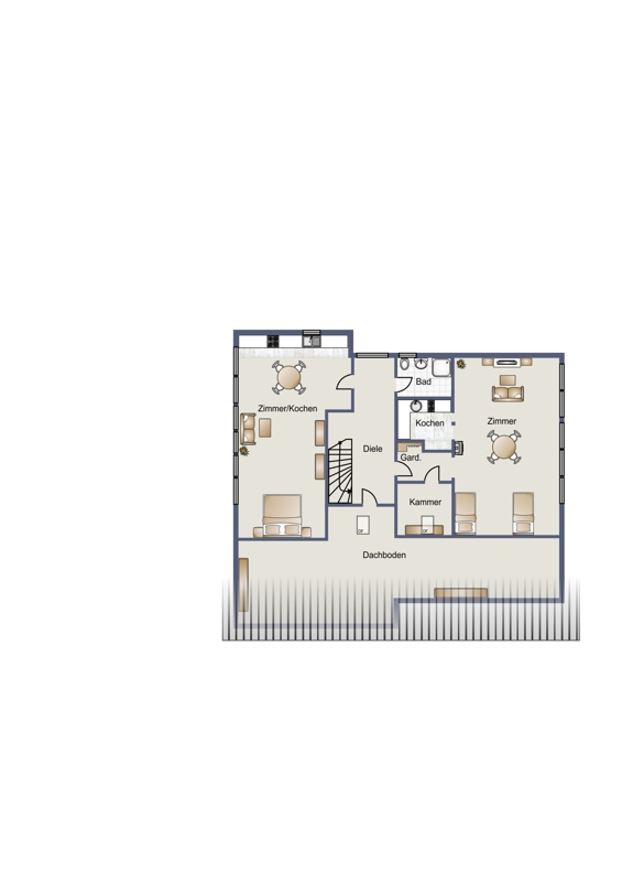
Das Haus umfasst drei Geschosse: das Erdgeschoß mit 5 Zimmer und rd. 165 m² Wohnfläche, das UG mit 2 Zimmern und rd. 55 m² Wfl und das DG mit rd. 100 Wfl. und ebenfalls 2 Zimmern.
Durch die leichte Hanglage ist das Untergeschoß ebenerdig zu begehen und kann als eigenständige Einliegerwohnung genutzt werden.
Das Dachgeschoß ließe sich durch eine kleine Umbaumaßnahme abtrennen, so dass insgesamt drei Wohneinheiten zu Verfügung stehen können.
Das Haus ist seinem Baujahr entsprechend ausgestattet und benötigt eine umfassende Renovierung, bietet jedoch viele Möglichkeiten.
Ein Haus mit Klasse in landschaftlich schöner Lage und unmittelbarer Stadtnähe!
Sonstiges
Immobilienmakler
Immotop GmbH Michael Müllner
Prüfeninger Schloßstraße 2, 93051 Regensburg
Tel.: 0941 / 30770 – 140
Fax: 0941 / 30770 – 17
Email: michael.muellner@remax.de
Umsatzsteuer-Identifikationsnummer gemäß § 27 a Umsatzsteuergesetz: DE 15 74 19 410
Genehmigung nach § 34 c Abs. 1 Satz 1 Nr. 1 GewO
Zuständige Erlaubnis- & Aufsichtsstelle ab 01.01.2020: IHK für München und Oberbayern, Max-Joseph-Straße 2, 80333 München
Amtsgericht Regensburg HRB 5256
Lage
Die Großgemeinde Sinzing, vor den südlichen Toren Regensburgs gelegen, bietet eine geradezu ideale Symbiose aus Stadtnähe einerseits und dörflicher Idylle andererseits.
Alle Einkaufsmöglichkeiten, Kindergärten und Schulen sind absolut familienfreundlich auf kurzem Wege erreichbar.
Zudem punktet die Lage mit ländlichem Charme und tollen Freizeitgestaltungsmöglichkeiten, kurzen Verkehrswegen und sehr guter Verkehrsanbindung. - in nur wenigen Gehminuten sind Sie an der Donau - auch alle notwendige Infrastruktur hinsichtlich Möglichkeiten des Einkaufs sowie ärztlicher Versorgung. Kindergärten wie Grund- und Hauptschule befinden sich vor Ort, weiterführende Bildungseinrichtungen im nahen Regensburg.
Verkehrstechnisch bestens an die A3 und damit auch an die A93 angeschlossen, bringen Sie auch Stadtbusse sowie die Deutsche Bahn - und diese in nur wenigen Minuten - in die Domstadt.
Sie sehen gerade einen Platzhalterinhalt von Google Maps. Um auf den eigentlichen Inhalt zuzugreifen, klicken Sie auf die Schaltfläche unten. Bitte beachten Sie, dass dabei Daten an Drittanbieter weitergegeben werden.
Mehr InformationenDie dargestellte Position der Immobilie ist nur eine ungefähre Angabe.




















