Leben unterm Walnussbaum!
93057 Regensburg, Einfamilienhaus zum Kauf
Kontaktdaten
-
NameFrau Sabine Lehner
-
FirmaRE/MAX in Regensburg
-
AnschriftPrüfeninger Schloßstraße 2
93051 Regensburg -
E-Mail
-
E-Mail
-
Telefon
-
Telefon
-
Fax00499413077017
verkauft
Dieses Objekt ist zur Zeit leider nicht verfügbar.
Objektdaten
-
Objekt ID1041-06245-2231
-
ObjekttypenEinfamilienhaus, Haus
-
Adresse(93057)
93057 Regensburg
Bayern -
Wohnfläche ca.75 m²
-
Grundstück ca.777 m²
-
Zimmer4
-
Schlafzimmer2
-
Badezimmer1
-
HeizungsartOfenheizung
-
Wesentliche EnergieträgerGas
-
Baujahr1940
-
Zustandrenovierungsbedürftig
-
Garage:1 Stellplatz
Ausstattung / Merkmale
- ✓ Einbauküche
- ✓ Garage
Energieausweis
-
EnergieausweistypBedarfsausweis
-
Gültig bis12.09.2034
-
GebäudeartWohngebäude
-
Baujahr lt. Energieausweis1940
-
PrimärenergieträgerGas
-
Endenergiebedarf372,50 kWh/(m²·a)
-
EnergieeffizienzklasseH
Objektbeschreibung
Beschreibung
Ihr kleines Siedlerhäuschen – aus den frühen 1940er Jahren – ist teilunterkellert und bietet Ihnen mit Erdgeschoss und Dachgeschoss ca. 75 m² Wohnfläche.
Sie betreten Ihr neues Zuhause über den – wohl später – angebauten Windfang und gelangen von hier in Ihre Diele.
Rechter Hand finden Sie nun Ihr Badezimmer und das Gäste WC.
Links orientierend Ihre Küche mit angrenzendem Esszimmer.
Ihr Flur führt Sie geradeaus in Ihr Wohnzimmer, von welchem Sie auch auf Ihre Terrasse und in Ihren Garten gelangen können.
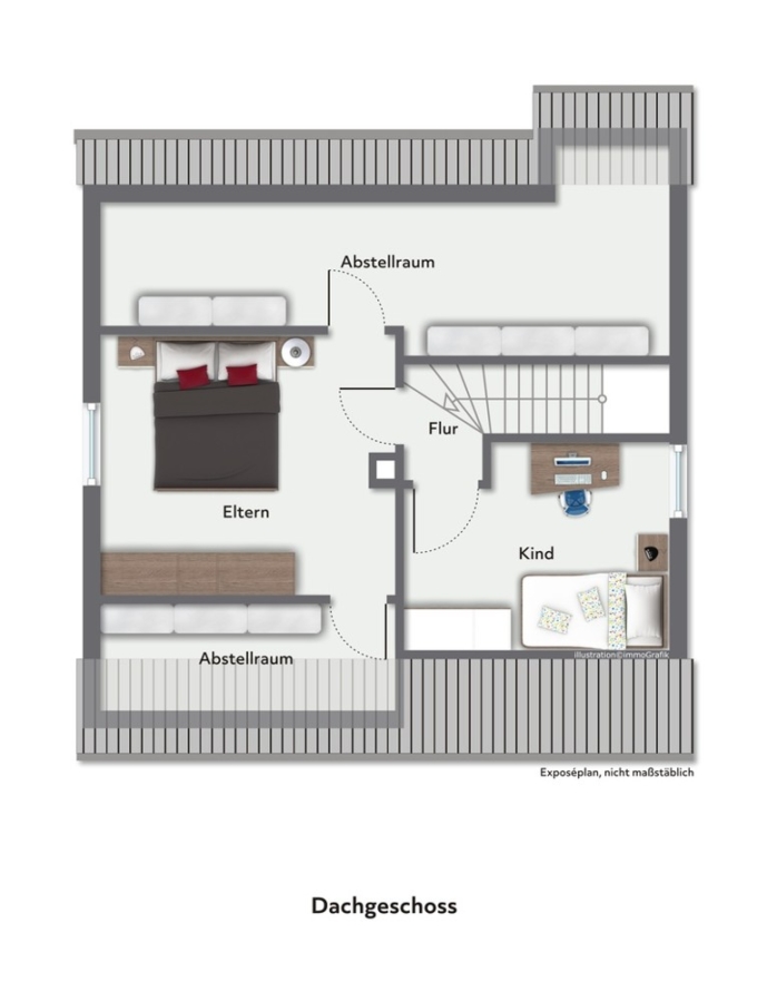
Treppauf finden Sie zwei Schlafräume und zwei Abstellkammern.
Zu Ihrem Haus gehört eine Garage mit angebautem Schuppen für Ihre Fahrräder oder Gartengeräte.
Gebäudeenergiedaten:
Bj 1940, EA-B, HZG Gas, 372,5 kWh/(m²*a) EEK H
Ausstattung
Ihr Häuschen präsentiert sich von außen sehr gepflegt – und wenn auch in den letzten Jahrzehnten investiert wurde – in ein moderneres Bad, in doppelverglaste Fenster, in eine Dachdämmung – so werden Sie doch noch Zeit und Geld für eine Modernisierung benötigen.
An Bodenbelägen zeigen sich gegenwärtig Teppich und Korkböden. Im Erdgeschoss wird mit Gaseinzelöfen geheizt, im Dachgeschoss mit Strom.
In Ihrem mit gut über 770 m² großem Grundstück finden Sie einen herrlichen Walnussbaum und Raum für Ihre Entfaltung – oder einen Anbau?
Sonstiges
Ihre Immobilienmaklerin
Sabine Lehner
Prüfeninger Schloßstraße 2, 93051 Regensburg
Tel.: 0941 / 30770 – 223
Fax: 0941 / 30770 – 17
Email: sabine.lehner@remax.de
Umsatzsteuer-Identifikationsnummer gemäß § 27 a Umsatzsteuergesetz: DE 27 42 82 299
Genehmigung nach § 34 c Abs. 1 Satz 1 Nr. 1 GewO
Zuständige Erlaubnis- & Aufsichtsstelle ab 01.01.2020: IHK für München und Oberbayern, Max-Joseph-Straße 2, 80333 München
Lage
In der Stadt?
In gewachsener Nachbarschaft?
In grüner wie ruhiger, geradezu dörflicher Idylle?
All das! Und mehr.
Die Konradsiedlung im Regensburger Norden bietet Ihnen eine hervorragende Infrastruktur. Kindergärten, Schulen, Ärzte und Einkaufsmöglichkeiten finden Sie in unmittelbarer Nähe.
Entsprechend viele Arbeitgeber.
Weiterhin verfügt dieser Stadtteil über eine ausgezeichnete auch überregionale Verkehrsanbindung sowie über sehr gute Möglichkeiten, die Innenstadt mit öffentlichen Verkehrsmitteln zu erreichen.
So gelangen Sie auch innerhalb weniger Minuten selbst in die Regensburger Altstadt.
Sie sehen gerade einen Platzhalterinhalt von Google Maps. Um auf den eigentlichen Inhalt zuzugreifen, klicken Sie auf die Schaltfläche unten. Bitte beachten Sie, dass dabei Daten an Drittanbieter weitergegeben werden.
Mehr InformationenDie dargestellte Position der Immobilie ist nur eine ungefähre Angabe.














