Charmanter Bauernhof mit Nebengebäuden und Erweiterungsmöglichkeit
92546 Schmidgaden, Bauernhaus zum Kauf
Kontaktdaten
-
NameFrau Sabriye Atas
-
FirmaRE/MAX in Schwandorf
-
AnschriftSchwaigerstraße 2
92421 Schwandorf -
E-Mail
-
E-Mail
-
Telefon
-
Telefon
-
Fax00499413077017
Objektdaten
-
Objekt ID1041-06646-7101
-
ObjekttypenBauernhaus, Haus
-
Adresse92546 Schmidgaden
Bayern -
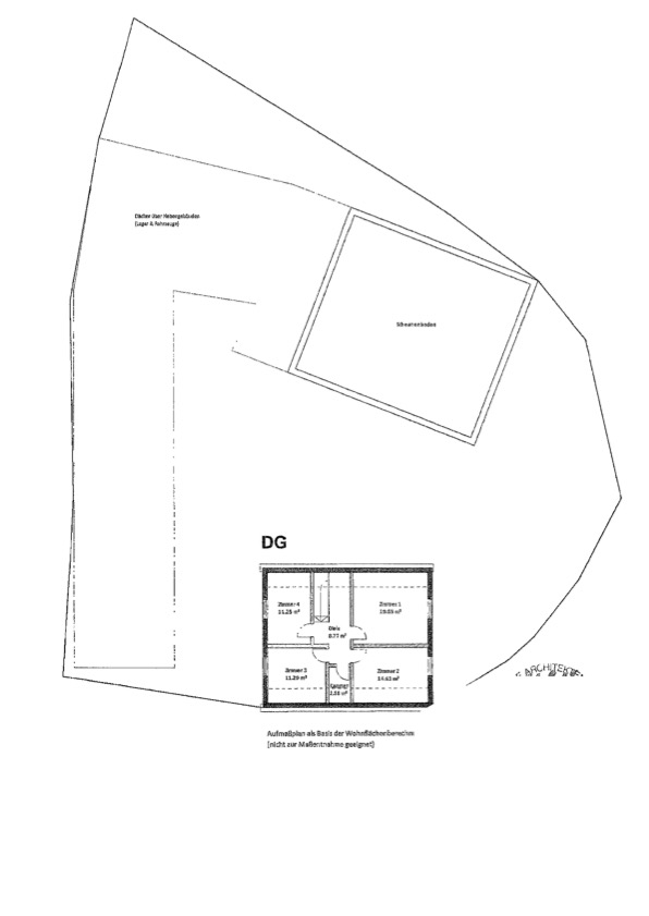
Wohnfläche ca.149 m²
-
Grundstück ca.1.168 m²
-
Nutzfläche ca.397 m²
-
Zimmer6
-
Schlafzimmer5
-
Badezimmer1
-
HeizungsartZentralheizung, Ofenheizung
-
Wesentliche EnergieträgerGas
-
Baujahr1959
-
Zustandrenovierungsbedürftig
-
Verfügbar absofort
-
Stellplatz:10 Stellplätze
-
Garage:10 Stellplätze
-
Käuferprovision3,57% aus dem Kaufpreis inkl. gesetzl. MwSt.
-
Kaufpreis169.000 EUR
Ausstattung / Merkmale
- ✓ Außenstellplatz
- ✓ Garage
Energieausweis
-
EnergieausweistypBedarfsausweis
-
Gültig bis27.08.2035
-
GebäudeartWohngebäude
-
Baujahr lt. Energieausweis1959
-
PrimärenergieträgerGas
-
Endenergiebedarf312,00 kWh/(m²·a)
-
EnergieeffizienzklasseH
Objektbeschreibung
Beschreibung
Inmitten der sanften Hügellandschaft des Oberpfälzer Landes, umgeben von weiten Feldern und Wäldern, befindet sich dieser charmante Bauernhof im beschaulichen Ortsteil Hohersdorf der Gemeinde Schmidgaden. Das Anwesen bietet auf einem großzügigen Grundstück von rund ca.1.168 m² eine einzigartige Kombination aus ländlicher Ruhe, traditionellem Charakter und vielseitigen Nutzungsmöglichkeiten.
Das Einfamilienhaus verfügt über insgesamt fünf Schlafzimmer, eine Küche sowie ein Badezimmer und bietet damit ausreichend Platz für eine große Familie oder Menschen, die das Leben auf dem Land in vollen Zügen genießen möchten. Das Gebäude ist sanierungsgsbedürftig, doch seine solide Bausubstanz schafft die ideale Grundlage, um den eigenen Wohntraum zu verwirklichen – sei es als klassisches Bauernhaus, stilvoll modernisiertes Landhaus oder Refugium für Naturliebhaber.
Jedoch wäre ein Abriss auch möglich.
Ergänzt wird das Wohnhaus durch mehrere Nebengebäude, die vielfältige Nutzungsmöglichkeiten eröffnen. Zwei große Garagen bieten Platz für Traktoren, Fahrzeuge oder eine Werkstatt. Zwei geräumige Stallungen eignen sich ideal für Tierhaltung oder als Lagerfläche. Darüber hinaus stehen eine Waschküche, ein separates Futterlager sowie eine Anlieferzone zur Verfügung. Diese durchdachte Struktur macht das Anwesen sowohl für landwirtschaftliche Nutzung als auch für handwerkliche oder hobbymäßige Projekte besonders attraktiv.
Bei Wunsch und Bedarf kann ein angrenzendes Baugrundstück zusätzlich erworben werden – ideal, um das Anwesen zu erweitern, ein weiteres Haus zu errichten oder zusätzliche Flächen für Garten, Tiere oder Gästehaus zu schaffen.
(4900 m² davon sind 1800 m² Bauland und der Rest ist Grünland)
Hinweis: Die Angaben in diesem Exposé sind unverbindlich und basieren auf Informationen, die uns zum Zeitpunkt der Erstellung vorlagen. Änderungen und Irrtümer sind vorbehalten.
Bj. 1959, EA-B, HZG-Gas, 312,0 kWh/(m²·a), EEK H
Ausstattung
- Grundstücksfläche ca. 1.168 m²
- Einfamilienhaus (ca.149 m²) mit 5 Schlafzimmern, Küche und Bad
Renovierungsbedürftiger Zustand – ideal für individuelle Gestaltung
- Zwei große Garagen – geeignet für Traktoren, Fahrzeuge oder Werkstatt
- Zwei großzügige Stallungen mit vielseitigen Nutzungsmöglichkeiten
- Separate Waschküche
- Anlieferzone für reibungslose Abläufe
- Futterlager mit ausreichend Stauraum
- Solide Bauweise mit traditionellem Bauernhof-Charme
- Weitläufiges Grundstück mit Platz für Garten, Tierhaltung oder Eigenanbau
Sonstiges
WICHTIGER HINWEIS :
Ich bitte Sie höflichst, Anfragen mit Ihrer kompletten Anschrift, Name und Tel.-Nr., über das Internetportal, auf dem Sie sich jetzt befinden, zu senden. Ich danke Ihnen für Ihr Verständnis.
Der guten Ordnung halber weisen wir Sie darauf hin, dass unsere Tätigkeit, eine Vermittlungs-/Nachweisgebühr in Höhe von 3,57 % des Kaufpreises inklusive der gesetzlichen Mehrwertsteuer nach notariellem Vertragsabschluss nach sich zieht. Durch Ihre weitere Objektanfrage bestätigen Sie die Vereinbarung und Anerkennung dieser Maklercourtage. Ferner beruhen diese Objektdaten auf Angaben des Verkäufers, für die wir keine Gewähr übernehmen.
Immobilienmaklerin
Sabriye Atas
Prüfeninger Schloßstr. 2, 93051 Regensburg
Tel.: 0941 30 77 0–237
Fax: 0941 30 77 0–17
M : 0179 / 72 67 891
Email: sabriye.atas@remax.de
Zuständige Erlaubnis- & Aufsichtsstelle ab 01.01.2020: IHK für München und Oberbayern, Max-Joseph-Straße 2, 80333 München
Steuernummer: 248/201/71078
Lage
Der Bauernhof befindet sich im idyllischen Ortsteil Hohersdorf, einer charmanten ländlichen Gemeinde der Marktgemeinde Schmidgaden im Landkreis Schwandorf. Hier vereinen sich Ruhe, Natur und eine gewachsene Dorfgemeinschaft – perfekt für alle, die das Leben auf dem Land schätzen, aber dennoch auf gute Erreichbarkeit verzichten möchten.
Umgeben von weiten Feldern, grünen Wiesen und Wäldern genießt man in Hohersdorf ein Höchstmaß an Privatsphäre und Erholung. Die Lage bietet eine unvergleichliche Atmosphäre aus ländlicher Idylle und familiärem Zusammenhalt – ideal für Familien, Tierliebhaber oder Selbstversorger, die einen Rückzugsort mit Charakter suchen.
Die Anbindung ist dennoch hervorragend:
- Schmidgaden mit Einkaufsmöglichkeiten, Schule, Kindergarten und Ärzten ist in nur wenigen Minuten erreichbar.
- Die Kreisstadt Schwandorf liegt rund 10 Fahrminuten entfernt und bietet eine umfangreiche Infrastruktur, Restaurants, Geschäfte und Freizeitmöglichkeiten.
- Über die Autobahn A93 und die Bundesstraße B85 erreicht man auch größere Städte wie Regensburg oder Weiden in der Oberpfalz schnell und bequem.
Sie sehen gerade einen Platzhalterinhalt von Google Maps. Um auf den eigentlichen Inhalt zuzugreifen, klicken Sie auf die Schaltfläche unten. Bitte beachten Sie, dass dabei Daten an Drittanbieter weitergegeben werden.
Mehr InformationenDie dargestellte Position der Immobilie ist nur eine ungefähre Angabe.










