Top Wohn- und Geschäftshaus in der Altstadt – direkt am Ludwigsplatz!
94315 Straubing, Bürohaus zum Kauf
Kontaktdaten
-
NameHerr Thomas Meinlschmidt
-
FirmaRE/MAX in Regensburg
-
AnschriftPrüfeninger Schloßstraße 2
93051 Regensburg -
E-Mail
-
E-Mail
-
Telefon
-
Telefon
-
Fax00499413077017
Objektdaten
-
Objekt ID1041-6362a-1101
-
ObjekttypenBüro/Praxis, Bürohaus
-
Adresse94315 Straubing
Bayern -
Wohnfläche ca.1 m²
-
Grundstück ca.480 m²
-
Nutzfläche ca.425 m²
-
Bürofläche ca.425 m²
-
Gesamtfläche ca.850 m²
-
Vermietbare Fläche ca.850 m²
-
Zimmer15
-
Wesentliche EnergieträgerGas
-
Baujahr2004
-
Zustandgepflegt
-
Käuferprovision3,57% inkl. MwSt.
-
Kaufpreis2.550.000 EUR
Energieausweis
-
EnergieausweistypBedarfsausweis
-
Gültig bis02.03.2035
-
GebäudeartNichtwohngebäude
-
Baujahr lt. Energieausweis2004
-
PrimärenergieträgerGas
-
Endenergiebedarf137,40 kWh/(m²·a)
-
EnergieeffizienzklasseE
Objektbeschreibung
Beschreibung
Im Herzen der Altstadt finden Sie hier eine einmalige Gelegenheit für alle, die auf gute Qualität und beste Lage setzen.
Das Objekt wurde 2004 neu gebaut und liegt zwischen den ansonsten historischen Gebäuden am Ludwigsplatz. Sie bekommen dementsprechend einen aktuellen Bautenstand in einem Altstadthaus! Wo findet man sowas, einmalig!
Die Flächenaufteilung ist sehr gut:
EG: Ladeneinheit ca. 300 m²
1.OG: Praxis Ergotherapie ca. 135 m²
2.OG: Büroeinheit ca. 136 m² (derzeit in Vermietung)
3.OG: Büroeinheit ca.140 m²
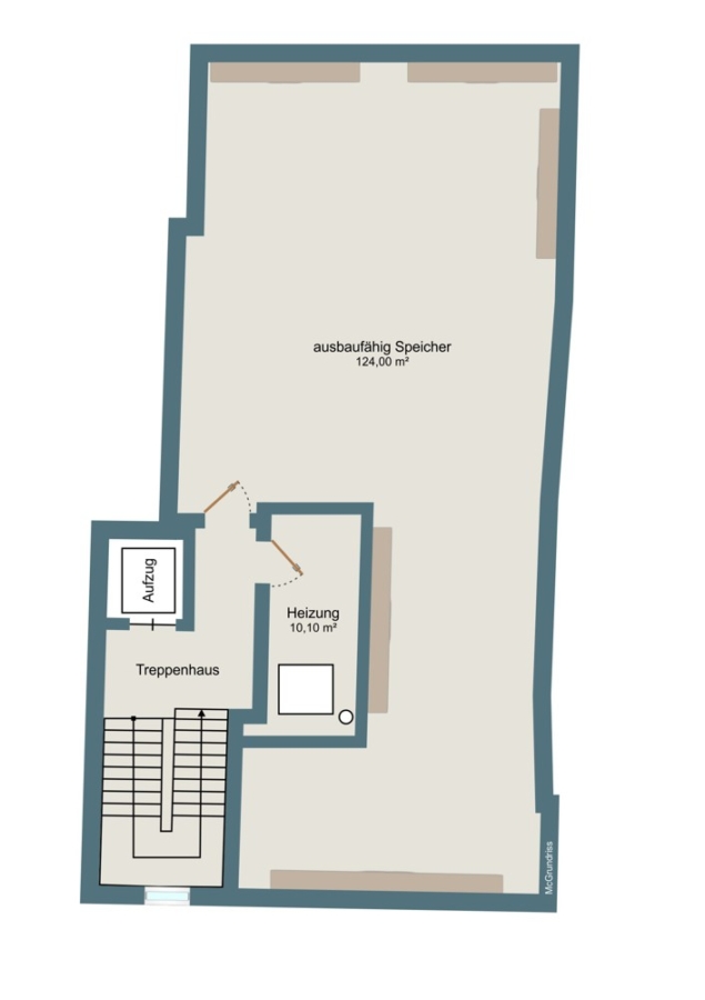
Dachgeschoss ca. 125 m²,
alle Versorgungsleitungen bereits vorgerüstet, jedoch noch nicht ausgebaut
Vermietbare Fläche inklusive Dachgeschoss: ca. 850 m²
Gesamt Nettomiete per Anno: 103.746,- € (mit 2.OG, ohne DG)
Bj 2004, EA-B, Heizung Gas, 137,4 kWh/(m²·a), EEK E
Ausstattung
Beste Altstadtlage
Baujahr 2004
kein Denkmalschutz
kein Reparaturstau
Top Zustand
Sonstiges
Für Fragen sowie für die Vereinbarung eines Besichtigungstermins stehen wir Ihnen unter der Tel.-Nr.: 0941/30770–11 (Hr. Meinlschmidt) gerne zur Verfügung.
Bei Erwerb verpflichtet sich der Käufer für unsere Tätigkeit eine Vermittlungs-/Nachweisgebühr in Höhe von 3,57 % des Kaufpreises inklusive der gesetzlichen Mehrwertsteuer nach notariellem Vertragsabschluss zu leisten.
Ferner beruhen diese Objektdaten auf Angaben des Verkäufers, für die wir keine Gewähr übernehmen.
Wir freuen uns auf baldige Nachricht von Ihnen!
Immobilienmakler:
Thomas Meinlschmidt
Prüfeninger Schloßstr. 2,
93051 Regensburg
Tel.: 0941 30 77 0–110
Fax: 0941 30 77 0–17
Email: thomas.meinlschmidt@remax.de
Aufsichtsbehörde:
Stadt Regensburg
Johann-Hösl-Str. 11
93053 Regensburg
USt.-Id.: DE 235 08 94 54
Lage
Die Einkaufsstadt Straubing mit seinen rund 47.000 Einwohnern bildet den wirtschaftlichen und kulturellen Mittelpunkt des Gäubodens. Im östlichen Teil der Stadt haben sich bedeutende Industriebetriebe der verschiedensten Branchen angesiedelt.
Die Freizeit- und Erholungsangebote der kreisfreien Stadt Straubing sind breit gefächert.
Das Gäubodenfest und die Ostbayernschau sind Attraktionen, welche auch überregional sehr bekannt sind.
Seit dem 1. Oktober 2017 trägt die Wissenschaftsstadt auch den Titel Universitätsstadt.
Das Wohn- und Geschäftshaus befindet sich direkt am Ludwigsplatz.
Sie sehen gerade einen Platzhalterinhalt von Google Maps. Um auf den eigentlichen Inhalt zuzugreifen, klicken Sie auf die Schaltfläche unten. Bitte beachten Sie, dass dabei Daten an Drittanbieter weitergegeben werden.
Mehr InformationenDie dargestellte Position der Immobilie ist nur eine ungefähre Angabe.



















