EG-Fläche in 93051 Regensburg
93051 Regensburg, Bürofläche zur Miete
Referenz
Dieses Objekt wurde bereits erfolgreich vermittelt.
Objektbeschreibung
Beschreibung
Die angebotene Erdgeschossfläche in der Dr.-Gessler-Straße 6 befindet sich in einem stark nachgefragten Gewerbeumfeld im Regensburger Süden und überzeugt durch eine sehr gute Erreichbarkeit sowie eine Lage mit hoher Alltagsfrequenz im direkten Einzugsbereich des KÖWE-Centers.
Durch die Nähe zu wichtigen Verkehrsachsen und den Autobahnanschlüssen ist der Standort sowohl aus der Innenstadt als auch aus dem Umland schnell erreichbar – ideal für Kunden, Mitarbeitende und Lieferverkehre.
Die Position im Erdgeschoss sorgt zudem für eine gute Sichtbarkeit.
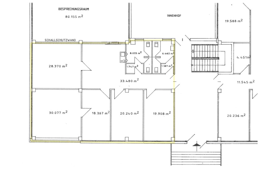
Über ein gemeinschaftliches Eingangsfoyer gelangen Sie in die Einheit mit einer Gesamtfläche von ca. 168 m² ( im Grundriss gelb umrandet).
Das Raumprogramm ist klar und praxistauglich: Insgesamt stehen fünf Büroräume zur Verfügung, die sich flexibel als Einzel- oder Teamoffice, Besprechungsraum oder Beratungszimmer nutzen lassen.
Ergänzend verfügt die Einheit über getrennte Damen- und Herren-WCs.
Elektrische Raffstore unterstützen Sicht- und Sonnenschutz.
Ein Glasfaseranschluss liegt bereits im Haus.
Mitvermietet werden zwei Tiefgaragenstellplätze zu je 65,00€ monatlich sowie drei Außenstellplätze zu je 35,00 € monatlich.
Die Fläche ist ab dem 01.05.2026 verfügbar.
Hinweis: Aus Datenschutzgründen konnten nicht alle Räumlichkeiten abgebildet werden.
Ausstattung
- Adresse: Dr.-Gessler-Straße 6, 93051 Regensburg
- Bürofläche im Erdgeschoss
- ca. 168 m² Bürofläche
- verfügbar ab dem 01.05.2026
- 5 Büroräume, separate Küche, getrennte Damen-/Herren-WCs
- Ausstattung: LED-Beleuchtung, elektrische Raffstore
- In der Einheit wird noch ein neuer Teppichboden in gleicher Qualität verlegt
- Glasfaseranschluss im Haus
- 2 Tiefgaragenstellplätze à 65 €/Monat je Stellplatz
- 3 Außenstellplätze à 35 €/Monat je Stellplatz
Sonstiges
Für Fragen sowie für die Vereinbarung eines Besichtigungstermins stehen wir Ihnen unter der Tel.-Nr.: 0941/30770–240 (Hr. Schober) gerne zur Verfügung.
Ferner beruhen diese Objektdaten auf Angaben des Eigentümers, für die wir keine Gewähr übernehmen.
Immobilienmakler
Florian Schober
RE/MAX in Regensburg
Prüfeninger Schloßstr. 2, 93051 Regensburg
Tel.: 0941 / 30770 – 240
Fax: 0941 / 30770 – 17
Email: florian.schober@remax.de
Umsatzsteuer-Identifikationsnummer gemäß § 27 a Umsatzsteuergesetz: DE228543230
Genehmigung nach § 34 c Abs. 1 Satz 1 Nr. 1 GewO
Zuständige Erlaubnis- & Aufsichtsstelle ab 01.01.2020: IHK für München und Oberbayern, Max-Joseph-Straße 2, 80333 München
Lage
Die Bürofläche in der Dr.-Gessler-Straße 6, 93051 Regensburg liegt in einem etablierten Gewerbe- und Dienstleistungscluster im Regensburger Süden– in unmittelbarer Nähe zu stark frequentierten Kundenmagneten wie dem KÖWE-Einkaufszentrum und weist somit eine sehr guter Sichtbarkeit im täglichen Versorgungs- und Einkaufsverkehr auf.
Ergänzt wird das Umfeld durch mehrere großflächige Ankermieter und bekannte Filialisten, die regelmäßig Laufkundschaft erzeugen.
Die verkehrliche Anbindung ist hervorragend: Die A93, Ausfahrt Regensburg-Königswiesen (AS 42), befindet sich in unmittelbarer Nähe; die Anfahrt zum Standort erfolgt direkt über die Dr.-Gessler-Straße. Für Ihre Kundschaft und Mitarbeitenden ist das Objekt damit sowohl aus dem Stadtgebiet als auch überregional schnell erreichbar.
Der ÖPNV bindet das Areal sehr komfortabel an.
Die Erdgeschosslage der Einheit sorgt zudem für gute Sichtbarkeit sowie einen bequemen Zugang für Kunden, Patienten oder Mandanten.
Sie sehen gerade einen Platzhalterinhalt von Google Maps. Um auf den eigentlichen Inhalt zuzugreifen, klicken Sie auf die Schaltfläche unten. Bitte beachten Sie, dass dabei Daten an Drittanbieter weitergegeben werden.
Mehr InformationenDie dargestellte Position der Immobilie ist nur eine ungefähre Angabe.










