Zeitnah verfügbar! Moderne, hochwertige Bürofläche in Top-Lage im Regensburger Westen!
93049 Regensburg, Bürofläche zur Miete
Kontaktdaten
-
NameHerr Florian Schober
-
FirmaRE/MAX in Regensburg
-
AnschriftPrüfeninger Schloßstraße 2
93051 Regensburg -
E-Mail
-
E-Mail
-
Telefon
-
Telefon
-
Fax00499413077017
Objektdaten
-
Objekt ID1041-06954-2404
-
ObjekttypenBüro/Praxis, Bürofläche
-
Adresse93049 Regensburg
Bayern -
Bürofläche ca.334 m²
-
Gesamtfläche ca.366 m²
-
Zimmer0,0
-
Schlafzimmer0,0
-
Badezimmer0,0
-
Baujahr2001
-
Zustandgepflegt
-
Stellplatz:Stellplatzmiete: 223,06 EUR (Anzahl: 3)
-
Kaltmiete4.767,59 EUR
-
Sonstige Preisangabenzzgl. Ust.
-
Nebenkosten1.480,96 EUR
-
Warmmiete6.471,61 EUR
Ausstattung / Merkmale
- ✓ Stellplatz
Energieausweis
-
EnergieausweistypVerbrauchsausweis
-
Gültig bis14.06.2029
-
GebäudeartNichtwohngebäude
-
Baujahr2001
-
PrimärenergieträgerFernwärme
-
Endenergieverbrauch Strom60,60 kWh/(m²·a)
-
Endenergieverbrauch Wärme60,00 kWh/(m²·a)
Objektbeschreibung
Beschreibung
Diese moderne Büroeinheit überzeugt mit einem durchdachten Flächenkonzept, einem außergewöhnlich ansprechenden Innenausbau und einem professionellen Gesamtauftritt, der sowohl Mitarbeitern als auch Kunden einen hochwertigen Eindruck vermittelt.
Bereits beim Betreten der Fläche wird deutlich, dass hier großer Wert auf ein modernes, repräsentatives und zugleich funktionales Arbeitsumfeld gelegt wurde.
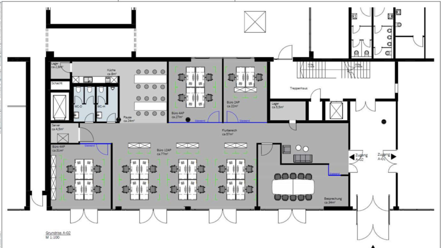
Die Einheit bietet eine gelungene Kombination aus großzügigen Open-Space-Bereichen, separaten Büroräumen, einem Besprechungsraum, einer ansprechend gestalteten Küche mit Aufenthaltsbereich, Lager- und Serverflächen sowie getrennten Sanitärbereichen.
Besonders hervorzuheben ist der moderne Ausbaustandard mit loftartigem Charakter. Sichtbetondecken in Verbindung mit einer markanten, designorientierten Beleuchtung verleihen der Einheit ein urbanes und zugleich sehr hochwertiges Erscheinungsbild.
Die innenliegenden Glas-Systemtrennwände schaffen eine elegante Transparenz innerhalb der Fläche.
Große, bodentiefe Fensterflächen sorgen zusätzlich für eine sehr angenehme Belichtung der Arbeitsbereiche.
Die Beheizung erfolgt über Wandkonvektoren; innenliegende WC-Bereiche werden über eine Abluftanlage entlüftet.
Insgesamt bietet die Fläche damit eine sehr gute Basis für einen sofortigen, professionellen Geschäftsbetrieb.
Ausstattung
- ca. 334,34 m² exklusive Bürofläche zzgl. anteiliger Gemeinschaftsflächen ca. 32,15 m²
- repräsentative Büroeinheit mit modernem, loftartigem Erscheinungsbild
- großzügige Open-Space-Bereiche kombiniert mit separaten Büro- und Besprechungsräumen
- hochwertige Glas-Systemtrennwände für Transparenz und ein offenes Raumgefühl
- bodentiefe Fensterflächen
- außenliegender, elektrisch steuerbarer Sonnenschutz
- moderne Küche mit Aufenthaltsbereich
- separater Serverraum mit vorbereiteter technischer Infrastruktur
- Glasfaseranschluss
- getrennte Damen- und Herren-WCs
- barrierefreier Zugang
- 3 Tiefgaragenstellplätze
- Zeitnah verfügbar
Sonstiges
Für Fragen sowie für die Vereinbarung eines Besichtigungstermins stehen wir Ihnen unter der Tel.-Nr.: 0941/30770–240 (Hr. Schober) gerne zur Verfügung.
Ferner beruhen diese Objektdaten auf Angaben des Mieters, für die wir keine Gewähr übernehmen.
Immobilienmakler
Florian Schober
RE/MAX in Regensburg
Prüfeninger Schloßstr. 2, 93051 Regensburg
Tel.: 0941 / 30770 – 240
Fax: 0941 / 30770 – 17
Email: florian.schober@remax.de
Umsatzsteuer-Identifikationsnummer gemäß § 27 a Umsatzsteuergesetz: DE228543230
Genehmigung nach § 34 c Abs. 1 Satz 1 Nr. 1 GewO
Zuständige Erlaubnis- & Aufsichtsstelle ab 01.01.2020: IHK für München und Oberbayern, Max-Joseph-Straße 2, 80333 München
Lage
Die angebotene Bürofläche befindet sich im beliebten Westen von Regensburg und überzeugt durch eine sehr gute Erreichbarkeit.
Der Standort bietet attraktive Rahmenbedingungen, da sowohl die Anbindung an das überregionale Straßennetz als auch die Erreichbarkeit innerhalb des Stadtgebiets als günstig zu bewerten sind.
Auch für Mitarbeiter, Kunden und Geschäftspartner ist der Standort komfortabel erreichbar.
Besonders hervorzuheben ist die gute Verkehrsanbindung in Richtung Innenstadt, umliegende Stadtteile sowie an die wichtigen regionalen und überregionalen Verkehrsachsen.
Dadurch eignet sich der Standort sehr gut für Unternehmen, die auf kurze Wege, eine gute Außendarstellung und eine unkomplizierte Erreichbarkeit für Kundenbesuche oder Mitarbeitende angewiesen sind.
Die Anbindung an den öffentlichen Nahverkehr ergänzt diese Standortqualität sinnvoll und erhöht zusätzlich die Attraktivität im Arbeitsalltag.
Im näheren Umfeld befinden sich verschiedene gewerbliche Nutzungen, Dienstleistungsangebote sowie infrastrukturelle Einrichtungen, die einen funktionalen und professionellen Unternehmensstandort unterstützen. Dies schafft ein angenehmes Umfeld für den täglichen Geschäftsbetrieb und bietet zugleich ein solides betriebliches Umfeld mit kurzen Wegen zu ergänzenden Angeboten.
Sie sehen gerade einen Platzhalterinhalt von Google Maps. Um auf den eigentlichen Inhalt zuzugreifen, klicken Sie auf die Schaltfläche unten. Bitte beachten Sie, dass dabei Daten an Drittanbieter weitergegeben werden.
Mehr InformationenDie dargestellte Position der Immobilie ist nur eine ungefähre Angabe.









