3 Zimmer-Eigentumswohnung: Groß, zentral, bezahlbar!
92521 Schwarzenfeld, Etagenwohnung zum Kauf
Kontaktdaten
-
NameHerr Thomas Wein
-
FirmaRE/MAX in Schwandorf
-
AnschriftSchwaigerstraße 2
92421 Schwandorf -
E-Mail
-
E-Mail
-
Telefon
-
Telefon
-
Fax00499413077017
Objektdaten
-
Objekt ID1041-06595-7131
-
ObjekttypenEtagenwohnung, Wohnung
-
Adresse92521 Schwarzenfeld
Bayern -
Etage1
-
Wohnfläche ca.90,50 m²
-
Vermietbare Fläche ca.90,50 m²
-
Zimmer3
-
Badezimmer1
-
HeizungsartZentralheizung
-
Wesentliche EnergieträgerGas
-
Baujahr1970
-
Zustandgepflegt
-
Käuferprovision3,57 % aus dem Kaufpreis inkl. gesetzl. Mwst.
-
Kaufpreis169.000 EUR
Energieausweis
-
EnergieausweistypBedarfsausweis
-
Gültig bis26.02.2035
-
GebäudeartWohngebäude
-
Baujahr lt. Energieausweis1980
-
PrimärenergieträgerGas
-
Endenergiebedarf206,20 kWh/(m²·a)
-
EnergieeffizienzklasseG
Objektbeschreibung
Beschreibung
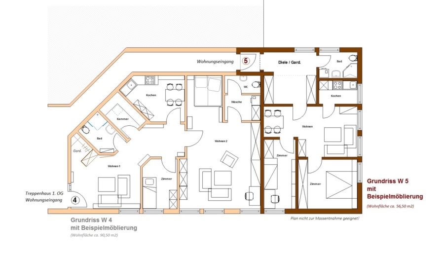
Zum Verkauf steht eine großzügige 3-Zimmer-Eigentumswohnung in Schwarzenfeld.
Die Wohnung liegt im Obergeschoss eines Wohn-und Geschäftshauses welches im Jahr 1970 erbaut wurde.
Die heutige Gestaltung der Wohnung basiert auf einem späteren Umbau, zuletzt modernisiert 2015.
Die Immobilie bietet eine Wohnfläche von 90,5 m², verteilt auf drei sehr variabel nutzbare Zimmer.
Ein kleines funktionales Badezimmer sowie die Essküche mit angrenzendem Stauraum ergänzen den Grundriss.
Komplett wird die Wohnung durch einen eigenen Wäscheraum und ein weiteres separates WC.
Siehe auch Grundrissplan: Wohnung W4 mit Beispielmöblierung (Bildteil).
Solide Bauqualität, regelmäßige Modernisierung und Unterhaltspflege:
Kein Renovierungsstau, einfach weiter vermieten ... oder selber einziehen.
Diese Immobilie stellt eine potenzielle Investition in einer gefragten Lage dar.
Für eine Besichtigung und weitere Informationen stehe ich Ihnen gerne zur Verfügung.
EnEV-Angaben: Bj.1980; Verbrauchsausweis; HZG-Gas: 206kWh(m2*a); EEK G
Ausstattung
- großzügige 3-Zimmer Etagenwohnung im 1. OG eines Wohn- und Geschäftshauses
- ca. 90,50 m² Wohnfläche
- Gas-Zentralheizung (Heizkörper)
- Fenster, Oberlichter, Böden und Türen 2015 erneuert
- Heizkessel neu in 2019
- guter Zustand
- aktuell vermietet (Kaltmiete 675,00 €)
- eigener Lagerraum im Dachboden (über Treppenhaus)
- öffentliche Parkplätze vor dem Haus
Sonstiges
WICHTIGER HINWEIS:
Ich bitte Sie höflichst, Anfragen mit Ihrer kompletten Anschrift, Name und Tel.-Nr., über das Internetportal, auf dem Sie sich jetzt befinden, zu senden. Ich danke Ihnen für Ihr Verständnis.
Der guten Ordnung halber weisen wir Sie darauf hin, dass unsere Tätigkeit, eine Vermittlungs-/Nachweisgebühr in Höhe von 3,57 % des Kaufpreises inklusive der gesetzlichen Mehrwertsteuer nach notariellem Vertragsabschluss nach sich zieht. Durch Ihre weitere Objektanfrage bestätigen Sie die Vereinbarung und Anerkennung dieser Maklercourtage. Ferner beruhen diese Objektdaten auf Angaben des Verkäufers, für die wir keine Gewähr übernehmen.
Immobilienmakler
Thomas Wein
Schwaigerstraße 2, 92421 Schwandorf
Tel.: 09431 / 71 827–13
Fax: 0941 / 30770 – 17
Email: thomas.wein@remax.de
Umsatzsteuer-Identifikationsnummer gemäß § 27 a Umsatzsteuergesetz: DE52 184 908 362
Genehmigung nach § 34 c Abs. 1 Satz 1 Nr. 1 GewO
Zuständige Erlaubnis- & Aufsichtsstelle ab 01.01.2020: IHK für München und Oberbayern, Max-Joseph-Straße 2, 80333 München
Lage
Die angebotene Eigentumswohnung befindet sich im Zentrum von Schwarzenfeld, einer idyllischen Gemeinde im Herzen der Oberpfalz, Bayern. Diese Region ist bekannt für ihre malerische Landschaft und die harmonische Kombination aus ländlicher Ruhe und städtischem Komfort. Schwarzenfeld bietet eine hervorragende Infrastruktur mit diversen Einkaufsmöglichkeiten, Restaurants und Cafés, die allesamt bequem zu erreichen sind.
Nicht weit von der Immobilie entfernt, ermöglichen öffentliche Grünflächen und Spazierwege eine Vielzahl von Freizeitaktivitäten im Freien, ideal für Naturliebhaber und Familien. Zudem ist Schwarzenfeld verkehrstechnisch sehr gut angebunden. Die Nähe zu größeren Städten ermöglicht es den Bewohnern, sowohl den beruflichen Verpflichtungen als auch kulturellen Veranstaltungen in der Umgebung problemlos nachzukommen.
Durch die gute Anbindung an öffentliche Verkehrsmittel sowie die Nähe zur Autobahn ist die Wohnung ein idealer Ausgangspunkt für Pendler und ermöglicht eine schnelle Erreichbarkeit der umliegenden Städte (Schwandorf, Weiden, Regensburg, Amberg).
Schulen und Kindergärten machen die Gegend besonders attraktiv für Familien.
Genießen Sie das Wohlgefühl eines Heimatortes mit der praktischen Nähe zu urbanen Zentren.
Sie sehen gerade einen Platzhalterinhalt von Google Maps. Um auf den eigentlichen Inhalt zuzugreifen, klicken Sie auf die Schaltfläche unten. Bitte beachten Sie, dass dabei Daten an Drittanbieter weitergegeben werden.
Mehr InformationenDie dargestellte Position der Immobilie ist nur eine ungefähre Angabe.


















